Gdynia Chylonia | 3 pokoje z dużym ogrodem 40 m² | Parter
Gdynia / Chylonia Pokaż na mapie ›
Dodane: Niedziela, 05 Kwiecień, 2026 01:51
704 378 zł
12807 zł/m2
Szczegóły ogłoszenia
- Kategoria: Mieszkania / Sprzedaż
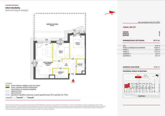
- Powierzchnia:55 m2
- Liczba pokoi:3 pokoje
- Zabudowa:Blok
- Rynek:Pierwotny
- Rok budowy:2026
- Sprzedaż:Pośrednik
- Cena: 704 378 zł / 12807 zł/m2
Opis oferty
Na sprzedaż nowoczesne, 3-pokojowe mieszkanie (55,17 m²) zlokalizowane na parterze nowej inwestycji w Gdyni Chyloni. To propozycja dla osób szukających komfortu domu z ogrodem w świetnie skomunikowanej części miasta.Szczegółowy opis pomieszczeń:
Salon z aneksem kuchennym (19,58 m²): Przestronne, jasne serce domu z bezpośrednim wyjściem na prywatny ogród (40,54 m²). Ustawna przestrzeń pozwala na wygodne wydzielenie strefy wypoczynkowej i jadalnianej.
Sypialnia główna (11,72 m²): Duży pokój z miejscem na szerokie łóżko małżeńskie oraz pojemną szafę garderobianą.
Druga sypialnia (9,02 m²): Idealna jako pokój dziecięcy, funkcjonalny gabinet lub pokój gościnny.
Dwie łazienki: Przemyślany układ z główną łazienką (3,55 m²) oraz drugą łazienką/WC, co znacząco podnosi komfort życia domowników.
Hol (6,79 m²): Funkcjonalna komunikacja z wnęką zaprojektowaną pod zabudowę.
Lokalizacja (w skrócie):
Chylonia to doskonały punkt komunikacyjny – bliskość SKM, ZKM oraz szybki wyjazd na Estakadę Kwiatkowskiego i ul. Morską zapewniają błyskawiczny dojazd do centrum Gdyni, portu i Obwodnicy Trójmiasta.
Informacje techniczne i dodatkowe:
Ogrzewanie: Miejskie (grzejniki panelowe).
Termin odbioru: IV kwartał 2027 r.
Cena mieszkania: 704 378,00 zł
Dodatkowo płatne:
Miejsce postojowe naziemne: 30 000 zł.
Miejsce w hali garażowej z komórką lokatorską: od 48 080 zł.
Komórki lokatorskie: od 4 000 zł/m².
Zapraszam do kontaktu i rezerwacji!
664 - pokaż numer telefonu - Angelika Brillowska
Sprawdź zainteresowanie tym ogłoszeniem
Wyświetlenia
Data dodania
Ostatnio widziany
Obserwujących
Wysłane zapytania
Odsłony telefonu
Powiadom o podobnych ogłoszeniach
Lokalizacja: Gdynia
Kategoria: Nieruchomości » Mieszkania » Sprzedaż
Cena: od 598500 zł do 810000 zł Powierzchnia : od 47 m2 do 63 m2
Chcę otrzymywać powiadomienia o nowych ofertach
- Wypromuj ogłoszenie
- Zgłoś naruszenie
- Drukuj ulotkę
- Edytuj/usuń ogłoszenie
- Udostępnij ogłoszenie
- Dodaj na Facebook


