GOTOWE mieszkanie 3 pokojowe widok na las Brak PCC
Gdynia / Chwarzno-Wiczlino Pokaż na mapie ›
Dodane: Czwartek, 27 Listopad, 2025 21:04
749 000 zł
12914 zł/m2
Szczegóły ogłoszenia
- Kategoria: Mieszkania / Sprzedaż
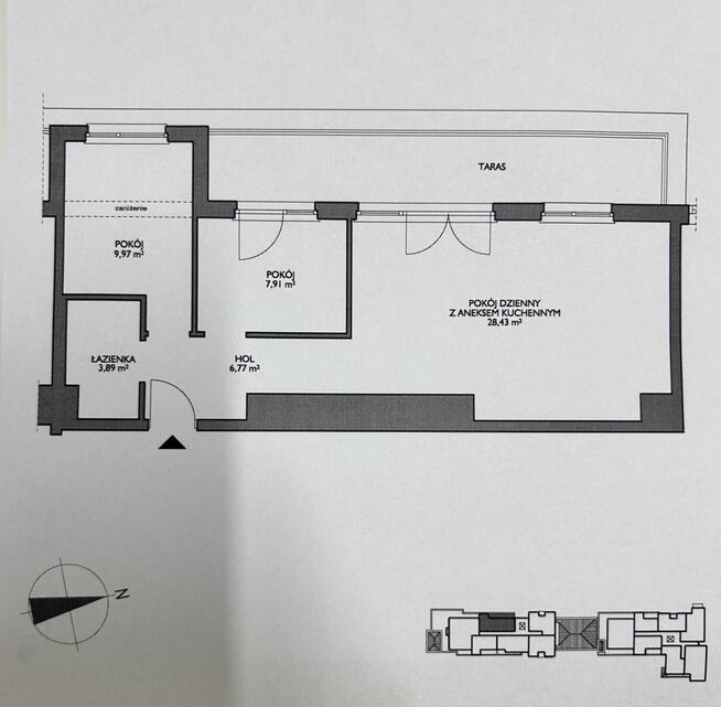
- Powierzchnia:58 m2
- Liczba pokoi:3 pokoje
- Zabudowa:Apartamentowiec
- Piętro :3 piętro
- Liczba pięter:3 piętra
- Rynek:Pierwotny
- Rok budowy:2024
- Sprzedaż:Pośrednik
- Cena: 749 000 zł / 12914 zł/m2
Opis oferty
Oferta dodana za pomocą Multiportalu BeBrokerNa sprzedaż mieszkanie w Gdyni, usytuowane na trzecim piętrze w trzypiętrowym budynku. Nieruchomość o powierzchni 58,3 m² składa się z trzech pokoi, co czyni ją idealnym miejscem dla rodziny lub osób poszukujących przestrzeni do pracy i wypoczynku. Mieszkanie jest w stanie do remontu, co daje możliwość aranżacji wnętrza według własnych upodobań. Budynek został wybudowany w 2024 roku, co zapewnia nowoczesne rozwiązania budowlane oraz komfort użytkowania. Ogrzewanie w mieszkaniu jest centralne, co gwarantuje ciepło w zimowe dni. Nieruchomość będzie dostępna od lipca 2025 roku, co pozwala na zaplanowanie przeprowadzki. Gdynia to miasto z bogatą ofertą kulturalną i rekreacyjną, a lokalizacja mieszkania sprzyja codziennemu życiu.
Wyjątkowość mieszkania:
- bardzo dobrze nasłonecznione ( zachodnie )
- widok na las
- taras o powierzchni 14m2
- wyjście na taras z balkonu oraz z jednej sypialni
- bardzo funkcjonalny układ
- mieszkanie nowe
- ściany wycekolowane oraz pomalowane na biało
-kupujący zwolniony z podatku PCC
Mieszkanie składa się z:
- Salon z aneksem kuchennym
- dwa osobne pokoje
- korytarz
- łazienka
- taras
-komórka lokatorska - 10 000 zł ( zakup obligatoryjny )
- miejsce w hali garażowej - 45 000 zł ( zakup nie jest obligatoryjny)
Serdecznie zapraszam do kontaktu w celu uzyskania dodatkowych informacji oraz umówienia się na prezentację.
Nie interesują mnie oferty biura nieruchomości.
Telefon: 575 - pokaż numer telefonu -
Powiadom o podobnych ogłoszeniach
Lokalizacja: Gdynia
Kategoria: Nieruchomości » Mieszkania » Sprzedaż
Cena: od 636500 zł do 861500 zł Powierzchnia : od 49 m2 do 67 m2
Chcę otrzymywać powiadomienia o nowych ofertach
- Wypromuj ogłoszenie
- Zgłoś naruszenie
- Drukuj ulotkę
- Edytuj/usuń ogłoszenie
- Udostępnij ogłoszenie
- Dodaj na Facebook
































